種出韌性:公共空間中的過渡性住房
透過規劃與地理分析,找到公共過渡性住房缺稀之區域,選定一處未開發之公園,開闢公園空間、三十六戶過渡性住房、以及一處樹苗工作場。(奧勒岡大學Cultivating Resilience團隊)
Recognition by ASLA PPN blog
格林堡橡樹社區中庭改造
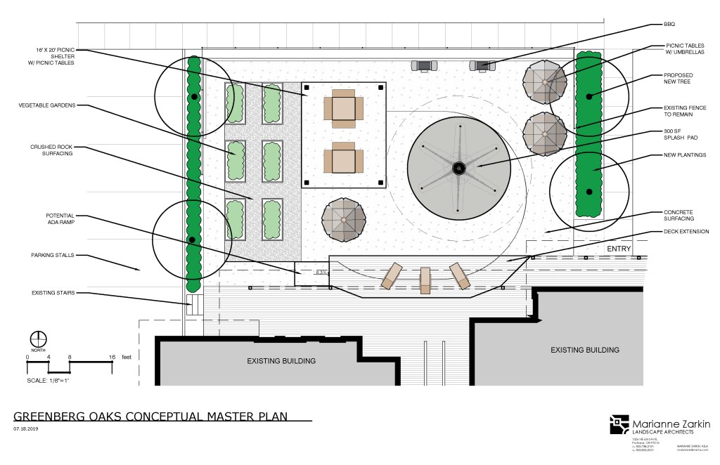
位於泰格爾市的社會住宅即將進行中庭改造,將一部分的停車場改為居民休憩空間,納入戲水設施、社區菜圃、以及可供聚會用之平台。(任職MZLA期間)
design | planning | research
透過規劃與地理分析,找到公共過渡性住房缺稀之區域,選定一處未開發之公園,開闢公園空間、三十六戶過渡性住房、以及一處樹苗工作場。(奧勒岡大學Cultivating Resilience團隊)
Recognition by ASLA PPN blog
位於泰格爾市的社會住宅即將進行中庭改造,將一部分的停車場改為居民休憩空間,納入戲水設施、社區菜圃、以及可供聚會用之平台。(任職MZLA期間)